
PARK ZONE 3
URBAN
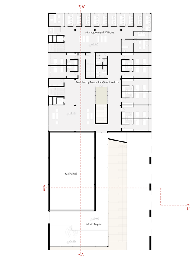
Project Place: Burgas, Bulgaria
Project Type: Cultural
Year: 2026
Team: Atahan Topçu, Gönenç Kurpınar, Melike Kocaker, İrem Çakırca, Ahmet Efe Haşılcıoğlu
Building Area: 16000 m²
Submitted to the Parkzone 3 Competition in Burgas, Bulgaria, the project proposes an urban connector that operates not only as a physical link between two key city centers but also as a cultural catalyst. The design transforms an otherwise residual transitional zone into an activated public landscape that supports cultural production, informal gatherings, and everyday social encounters. By layering circulation with programmatic nodes and event-oriented spaces, the proposal generates a continuous spatial network that fosters interaction, engagement, and urban vitality, ultimately reinforcing the relationship between movement, culture, and public life.














